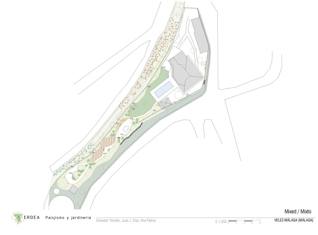
Casa Helena

Proyecto:

La remodelación que realizamos en esta propiedad, consiste en adaptar un jardín más piscina con una superficie alargada y estrecha, con una amplia gama de colores y diferentes plantas.

Dentro del espacio hemos tratado de aportar diversidad y serenidad, que conseguimos mediante los diferentes colores de la gravilla usada para formar los senderos que se trazan a lo largo de la propiedad.


Después